ディアコート吉祥寺 / 266,200円 48.51m2 築18年 賃貸空室情報|三鷹 吉祥寺 賃貸 | 三鷹 吉祥寺の賃貸なら(有)三協住宅社

三鷹、吉祥寺の不動産の事なら創業昭和23年、三鷹・吉祥寺密着の当社にお任せください。三鷹・吉祥寺エリアで賃貸の不動産を多数紹介しています。

登録・更新日:2025/10/22

 

ディアコート吉祥寺 

賃料 26万6200円
管理・共益費
33,000円
敷金 - 礼金 -
主要アクセス 総武・中央緩行線 吉祥寺駅  から 徒歩12分 保証金 3ヶ月 面積 48.51m 2  ( 14.67坪 )

[メールで簡単] この物件を問い合わせる

外観図

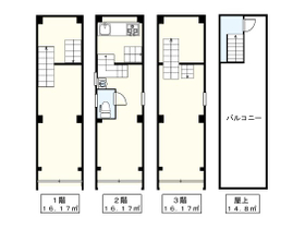
間取り図面

電話番号
0422-22-6147
受付時間
[平日]9:30~18:30 [日・祝日]10:30~18:00
問い合せ番号
2_1359

[メールで簡単] この物件を問い合わせる

  •  外観図
  • 1F部分になります。
  • 1F部分になります。
  • 2F部分になります。
  • 2F部分になります。
  • 3F部分になります。
  • トイレです。
  • 洗面台になります。
  • キッチン廻りです。
  • 3口ガスコンロ付のシステムキッチンです。
  • 屋上部分になります。

担当者からコメント

吉祥寺通りに面した一棟全体貸ビル!店舗や事務所にも最適ですよ!3階建ての一括貸になります!屋上もありますよ!業種等相談可!残置エアコン2基あり!1階を店舗利用、2.3階を事務所なんて使い方も可能です!是非お問合せ下さい!
電話番号
0422-22-6147
受付時間
[平日]9:30~18:30 [日・祝日]10:30~18:00
問い合せ番号
2_1359

[メールで簡単] この物件を問い合わせる

物件詳細情報

基本

アクセス 総武・中央緩行線 吉祥寺駅  から 徒歩12分 種別 事務所・店舗・他
所在地 東京都武蔵野市吉祥寺北町1丁目 5-14 学校区 -

費用

賃料 26万6200円 管理・共益費 33,000円
礼金 - 敷金・保証金 - ・ 3ヶ月
償却・敷引 退去時、 2.5ヶ月 雑費 -
家賃保証会社 必加入、 日本セーフティー、 保険料 3年契約 -
契約期間 3年 更新料 新賃料の1ヶ月分
仲介手数料 1ヶ月 (税込 29万2820円)

建物

間取り 専有面積 48.51m 2  ( 14.67坪 )
構造 鉄骨造 完成年月 2007年01月 ( 築18年 )
所在階 / 階数 -  / 3階建 総戸数 -
駐車場 - バイク置場 -
駐輪場 - 管理 -
リフォーム - リノベーション -
設備・条件 -

その他

現況 ・ 入居 空室  ・  相談 取引態様 仲介
次回更新日 2025/11/22 QRコード

QRコードから物件情報を見ることが出来ます。読み取りにくい方はこちらからQRコードを拡大できます。

担当者 鈴木 浩之

ディアコート吉祥寺への お問い合わせは有限会社三協住宅社 サンロード店まで

有限会社三協住宅社 サンロード店
〒180-0004東京都武蔵野市吉祥寺本町1丁目11-21

会社案内

印刷する

お電話・FAXでのお問い合せ
TEL:0422-22-6147 FAX:0422-22-6672
受付時間
[平日]9:30~18:30 [日・祝日]10:30~18:00

物件の空き状況や、内見希望などお気軽にお問い合わせください

[メールで簡単] この物件を問い合わせる

こちらの物件もあります。

  • 東京都武蔵野市吉祥寺北町

    26万6200円

    48.51m²

    吉祥寺駅から徒歩 12分

    候補

  • 東京都武蔵野市吉祥寺北町

    17万円

    40m²

    三鷹駅から徒歩 17分

    候補

  • 東京都武蔵野市吉祥寺東町

    55万円

    133.01m²

    吉祥寺駅から徒歩 5分

    候補

  • 東京都武蔵野市吉祥寺本町

    77万1760円

    115.97m²

    吉祥寺駅から徒歩 7分

    候補

  • 東京都武蔵野市吉祥寺本町

    8万2500円

    17.4m²

    吉祥寺駅から徒歩 5分

    候補

  • 東京都武蔵野市吉祥寺本町

    78万9624円

    98.88m²

    吉祥寺駅から徒歩 7分

    候補

  • 東京都武蔵野市西久保

    12万円

    35.06m²

    三鷹駅から徒歩 15分

    候補

  • 東京都三鷹市下連雀

    14万3000円

    34.32m²

    三鷹駅から徒歩 10分

    候補

  • 東京都武蔵野市吉祥寺東町

    16万5000円

    62m²

    吉祥寺駅から徒歩 9分

    候補

  • 東京都武蔵野市吉祥寺東町

    14万3000円

    43m²

    吉祥寺駅から徒歩 9分

    候補

  • 東京都武蔵野市吉祥寺本町

    77万8800円

    97.42m²

    吉祥寺駅から徒歩 7分

    候補

  • 東京都武蔵野市吉祥寺本町

    8万2500円

    17.4m²

    吉祥寺駅から徒歩 5分

    候補

  • 東京都武蔵野市吉祥寺本町

    91万3748円

    100.96m²

    吉祥寺駅から徒歩 7分

    候補

最近見た物件 (1)